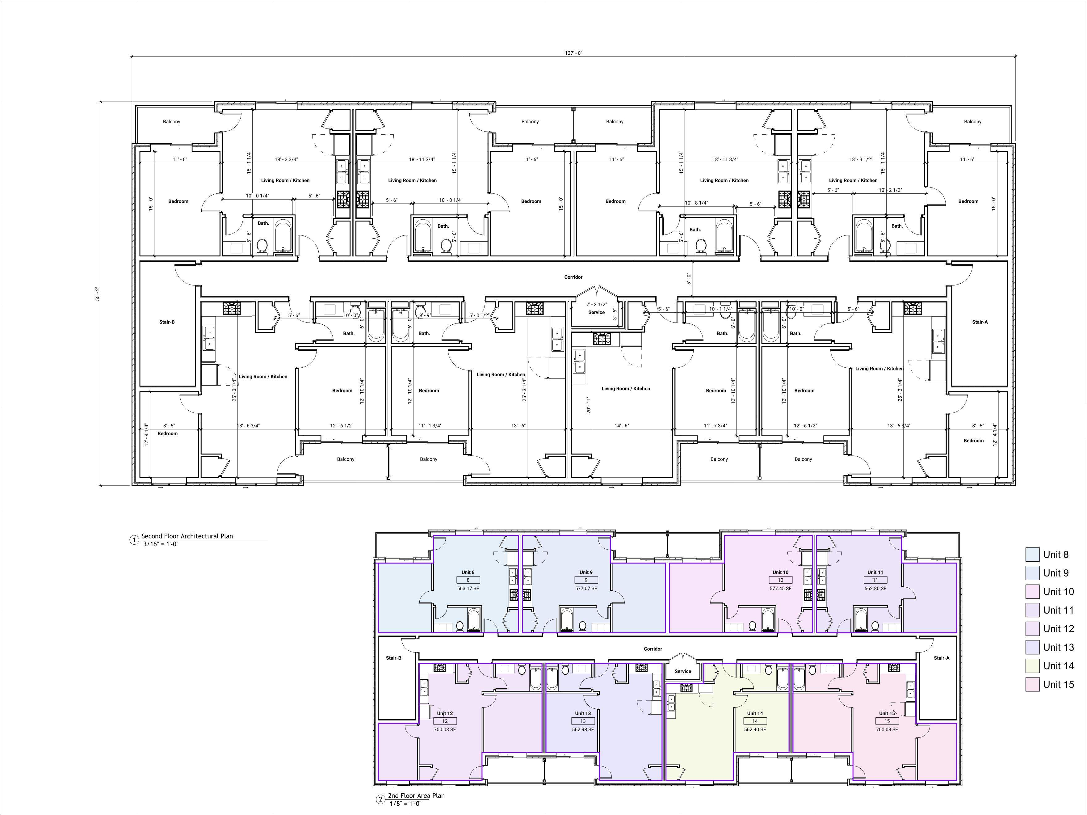
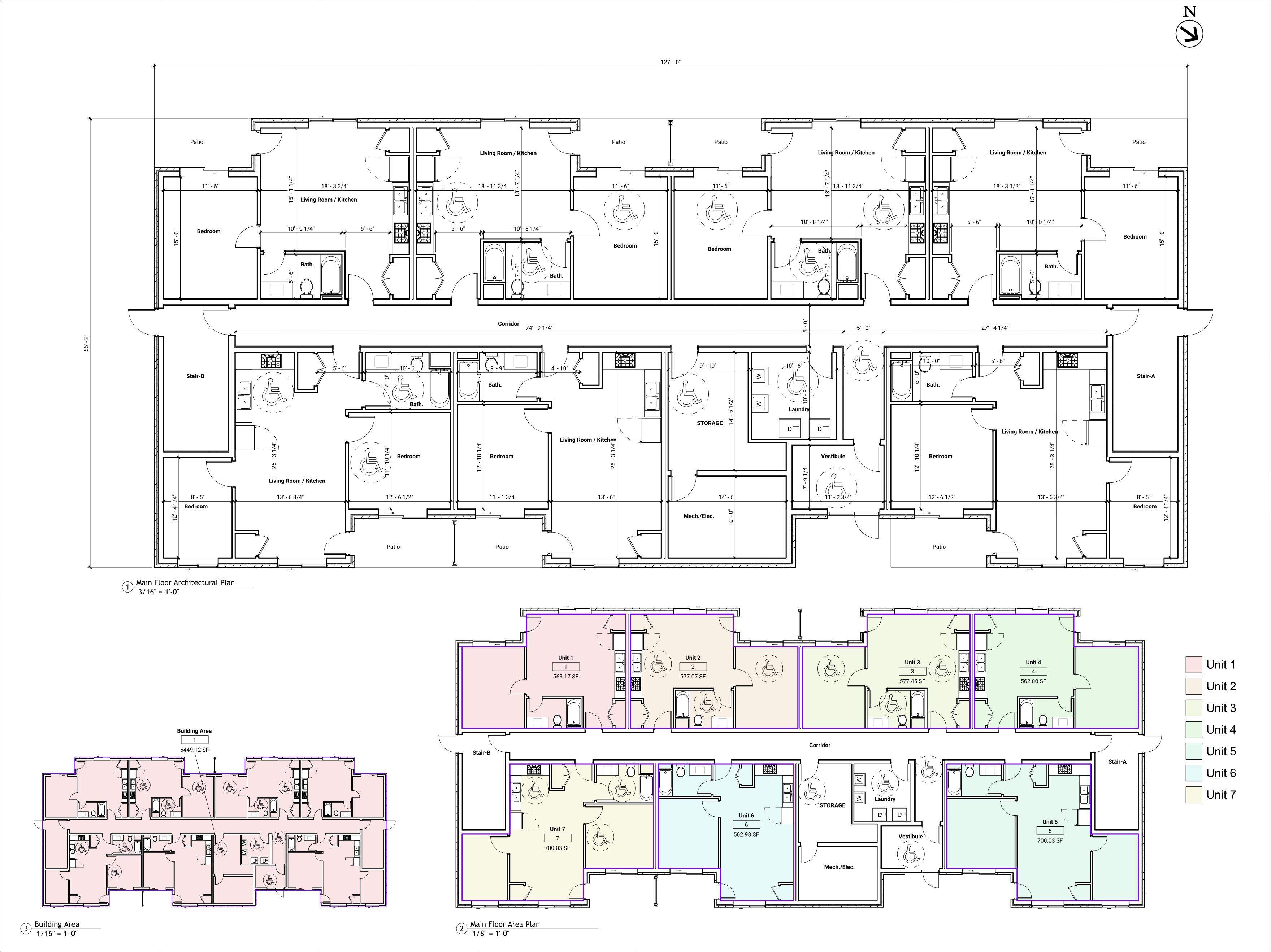
Halton Street, Perth — Affordable Housing

Project details

Type & Location: Two-storey 15-unit affordable housing apartment building on an infill site, Perth, Ontario.

My Role: Project Coordinator & Architectural Designer — site planning, building layout design, and coordination for permit submission.

Key Scope:

  • Developed conceptual designs and site plan layouts aligned with funding timelines and municipal planning policies.

  • Responded to neighbourhood and municipal feedback, refining the concept into a balanced, context-sensitive solution addressing privacy, scale, and traffic concerns.

  • Ensured delivery within tight funding deadlines to help the client secure project financing.

  • Prepared multiple concept options before finalizing the approved scheme.

Planning & Code:

  • Verified zoning compliance and residential density allowances.

  • Ensured OBC Part 9 compliance for exits, accessibility, and fire separations.

  • Incorporated barrier-free access and sustainable design considerations.

Coordination:

  • Collaborated with lead architect, civil engineer, and M/E team for technical input and coordinated submission package.

  • Communicated with municipal planning staff to address feedback efficiently and maintain project momentum.

Tools: Revit, AutoCAD, SketchUp, Twinmotion.

Outcome/Status: Under Construction (2025)

Related Drawings

Ketan Tadha

Toronto, Ontario | (647) 608-7203 | tketan2496@gmail.com

© Ketan Tadha, 2025