Northern Cables — Office Addition

Project details

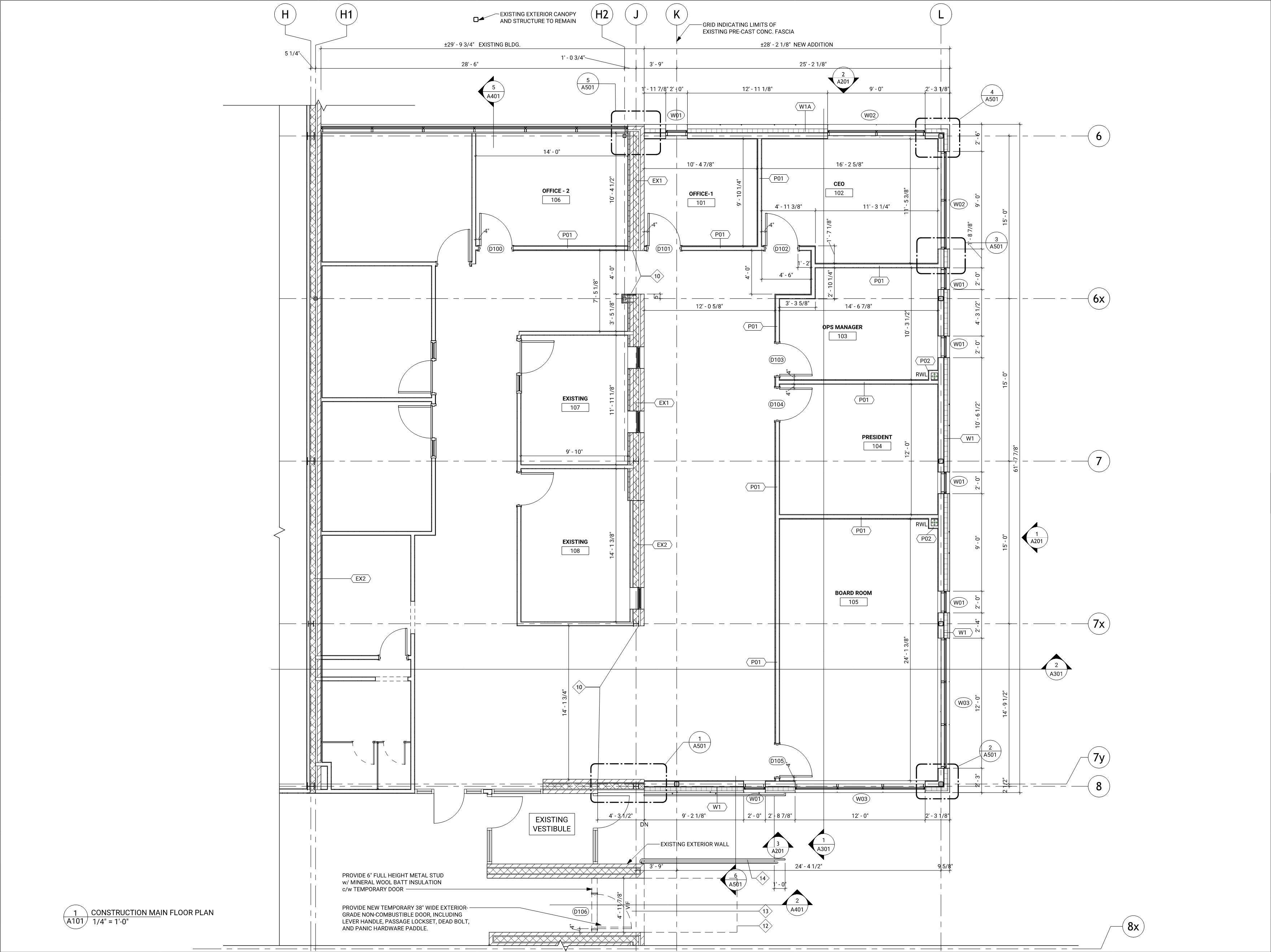
Type & Location: 1-storey office addition (approx. 1,800 sq.ft.) to an existing industrial facility, Brockville, Ontario.

My Role: Architectural Designer & Project Manager — design development, coordination, tendering, and construction administration.

Key Scope:

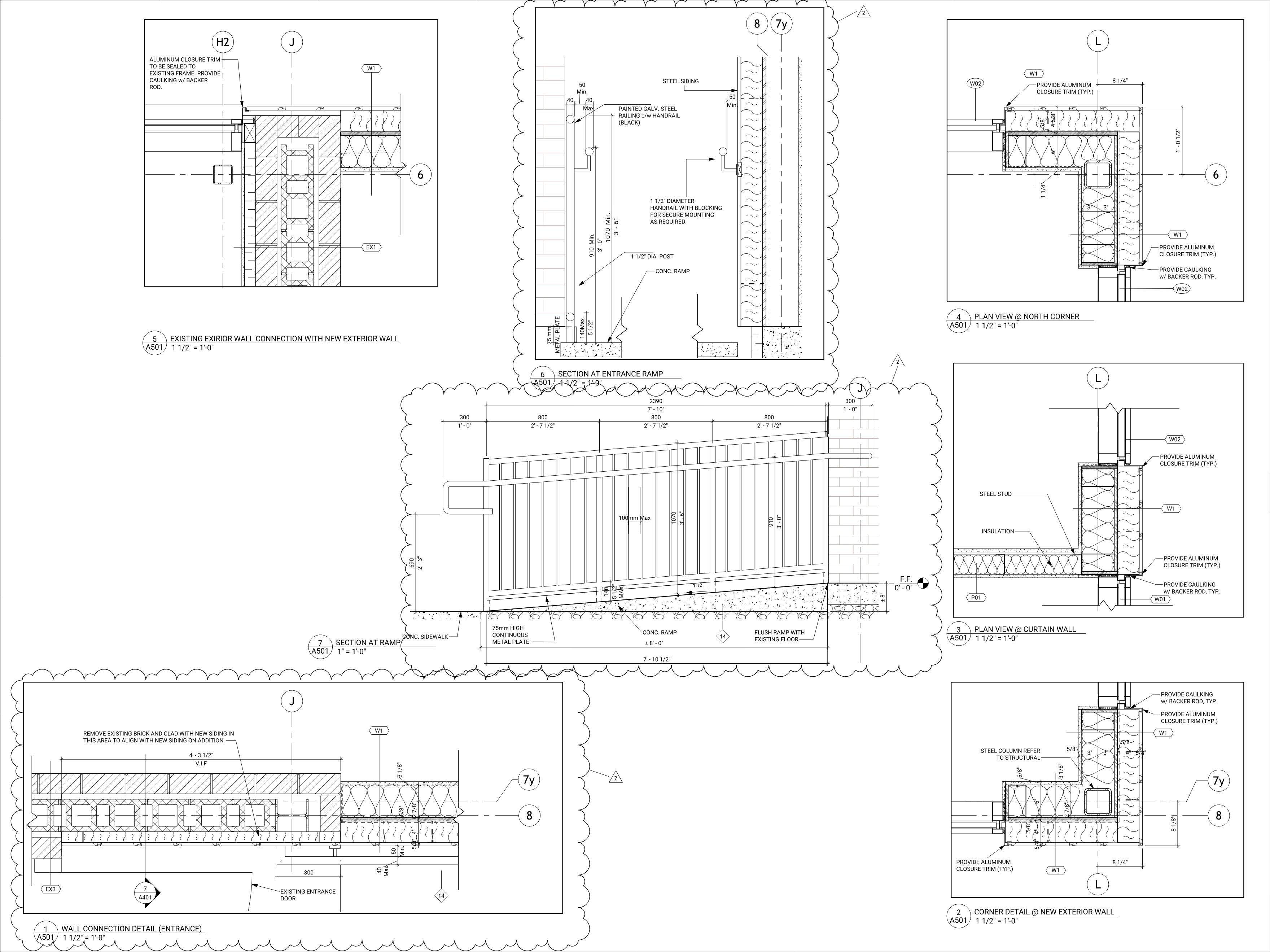
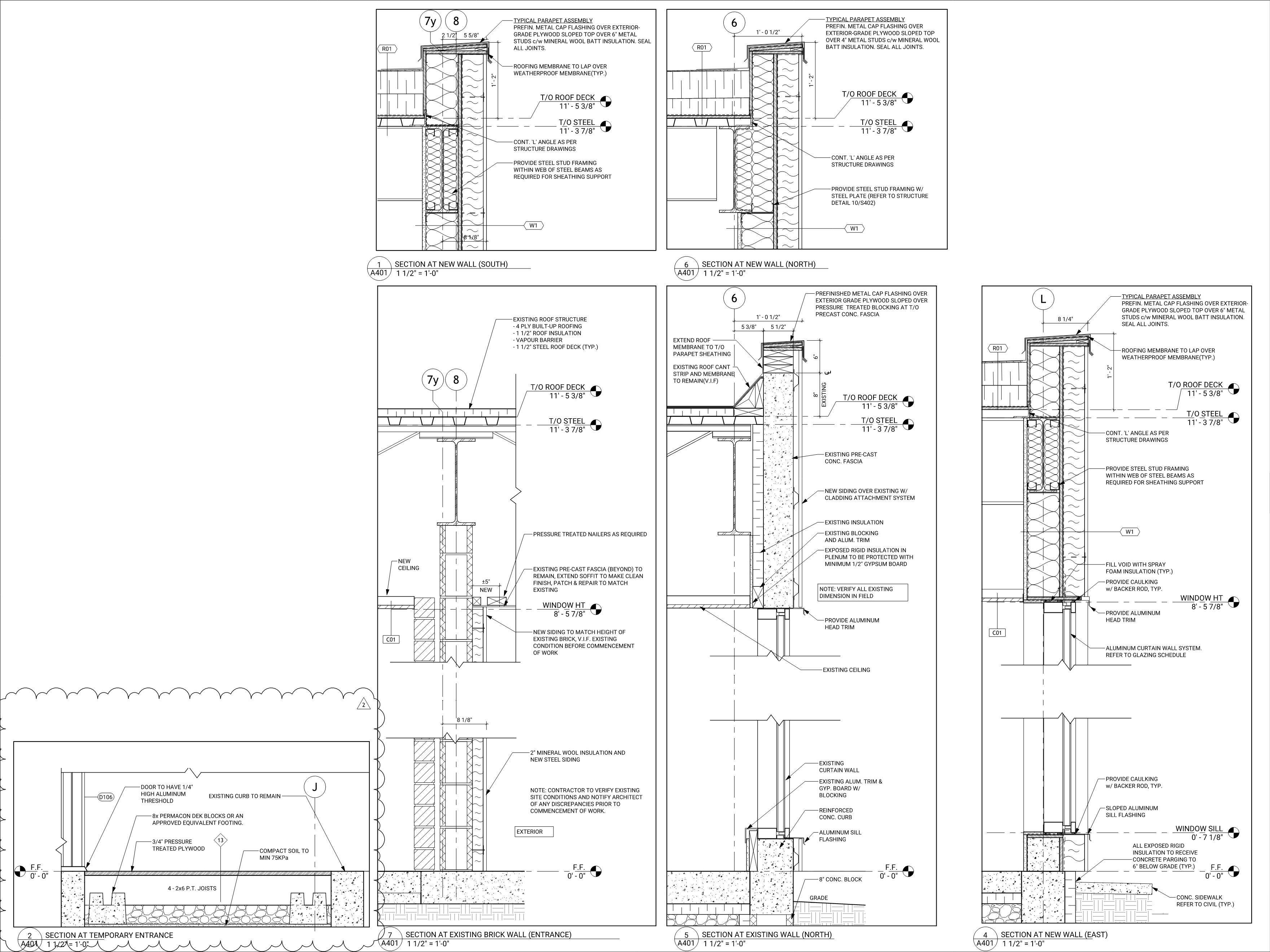
  • Developed complete architectural and site plan drawings, including floor plans, elevations, building sections, and details.

  • Created as-built drawings based on site measurements and existing scanned drawings to establish accurate design baselines.

  • Produced 3D concept renderings—initially with ACM façade, later revised with metal siding to meet the client’s budget.

  • Supported civil drawing drafting, reviewed tender packages, and evaluated contractor bids with recommendations to the client.

  • Managed ongoing construction coordination, including shop drawing reviews, RFI tracking, site inspections, and contractor communication.

Planning & Code:

  • Prepared and reviewed OBC Part 3 compliance for industrial/office occupancy.

  • Verified barrier-free access provisions and egress requirements.

  • Coordinated stormwater and grading layouts for permit submission and site plan compliance.

Coordination:

  • Collaborated with Civil, Structural, Mechanical, and Electrical engineers throughout design and construction.

  • Worked with contractor and client representatives during tender and construction phases to ensure schedule, cost, and quality alignment.

Tools: Revit, AutoCAD, Twinmotion, Bluebeam Revu.

Outcome/Status: Under Construction (Completion anticipated Jan 2026)

Related Drawings

Ketan Tadha

Toronto, Ontario | (647) 608-7203 | tketan2496@gmail.com

© Ketan Tadha, 2025