Residential Apartments

Project details

Type & Location: Adaptive reuse of an existing community center into modern multi-unit residential apartments, Brockville, Ontario.

My Role: Architectural Designer — design development, code review, permit set production, and coordination through construction administration.

Key Scope:

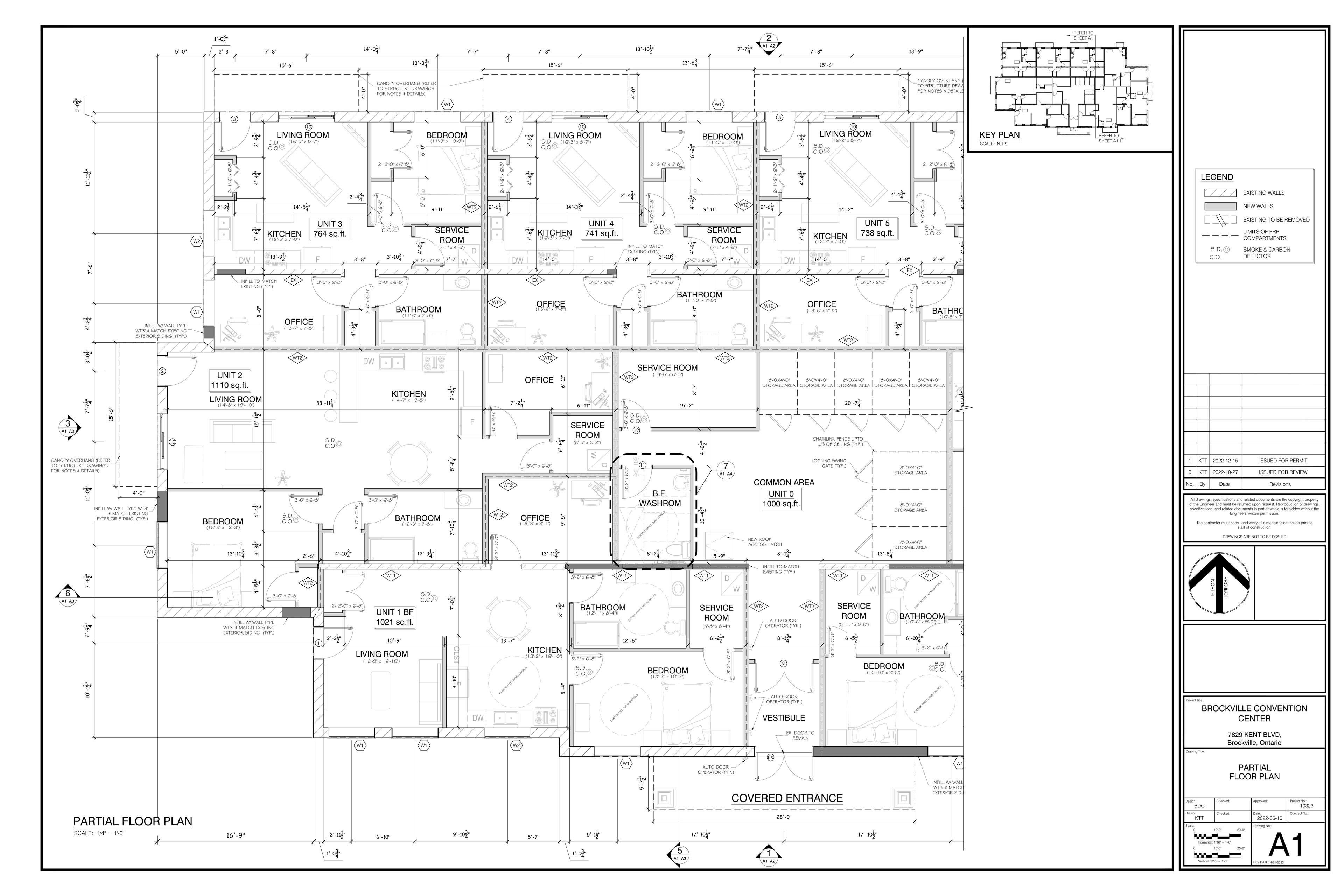
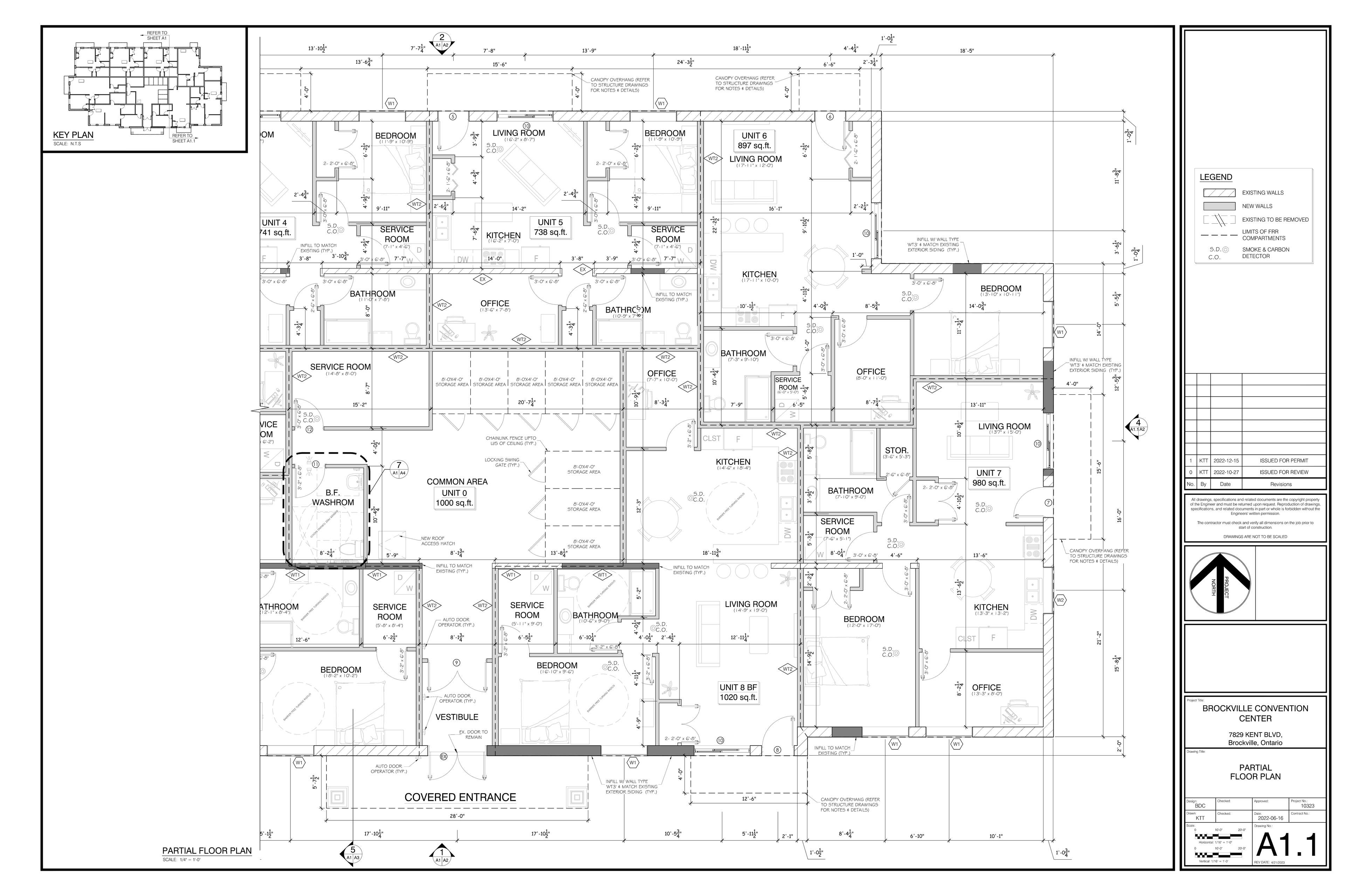
  • Led the transformation of a former community center into contemporary residential units, optimizing the existing structure for efficient layouts and accessibility.

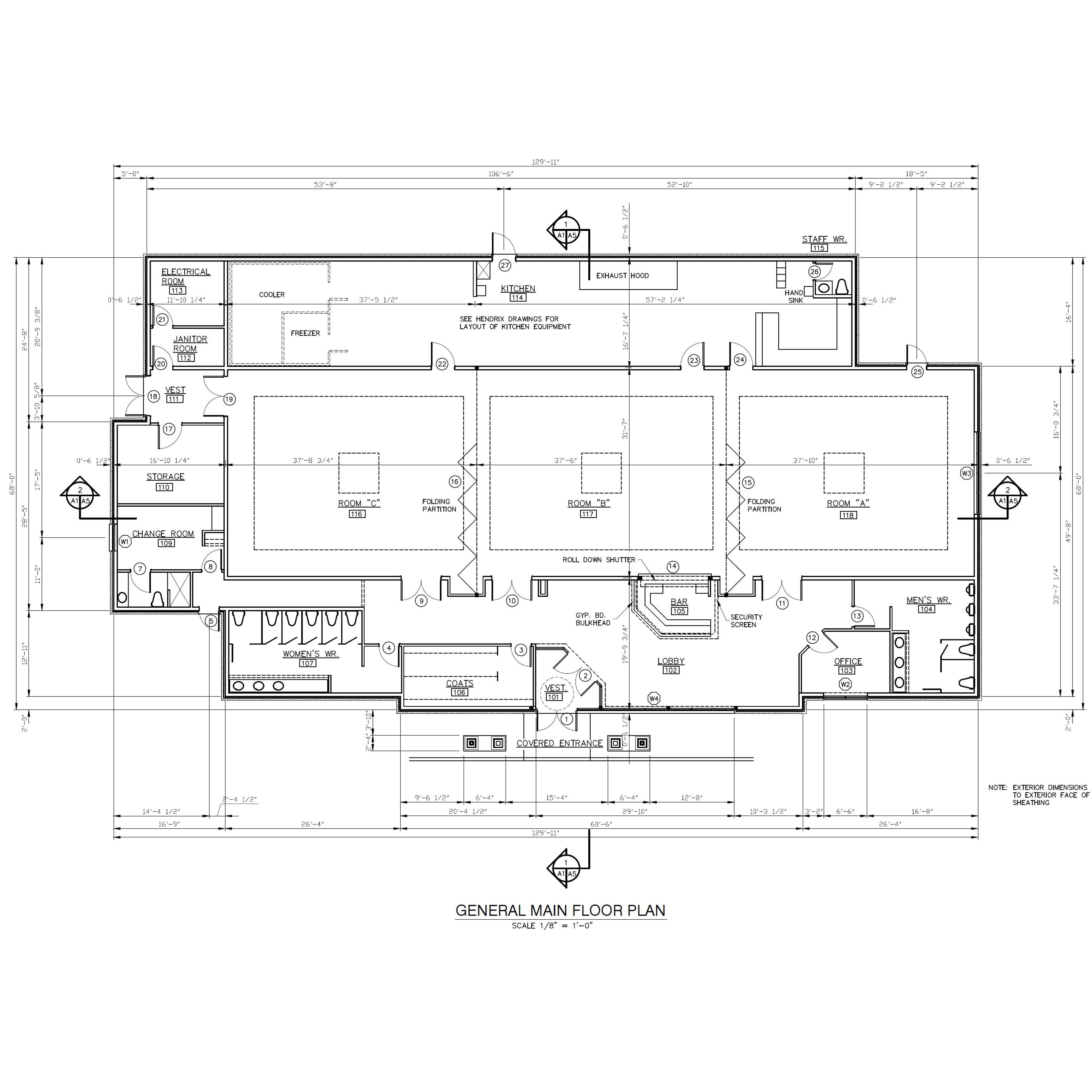
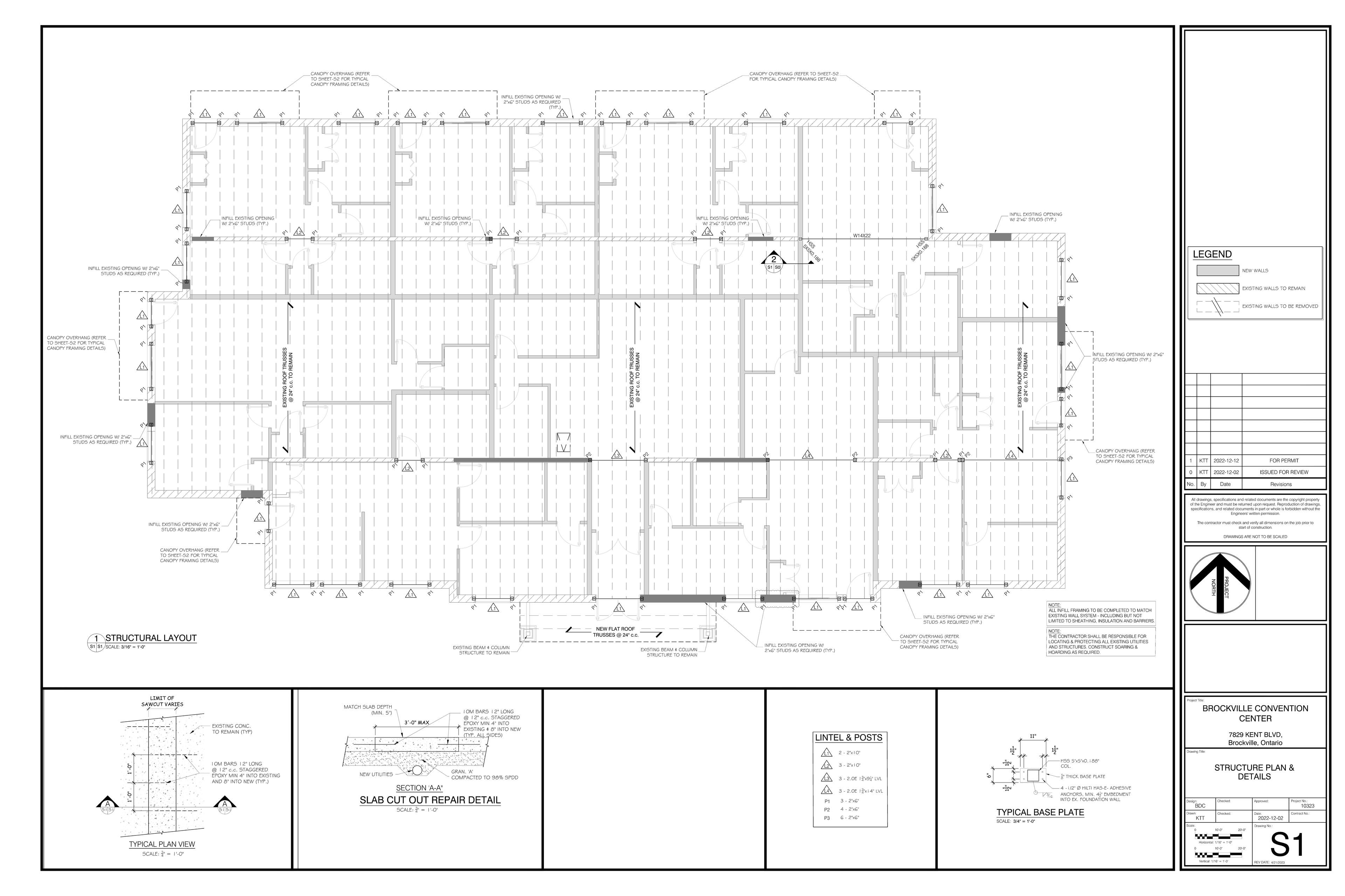
  • Produced detailed architectural drawings including floor plans, elevations, sections, and interior layouts.

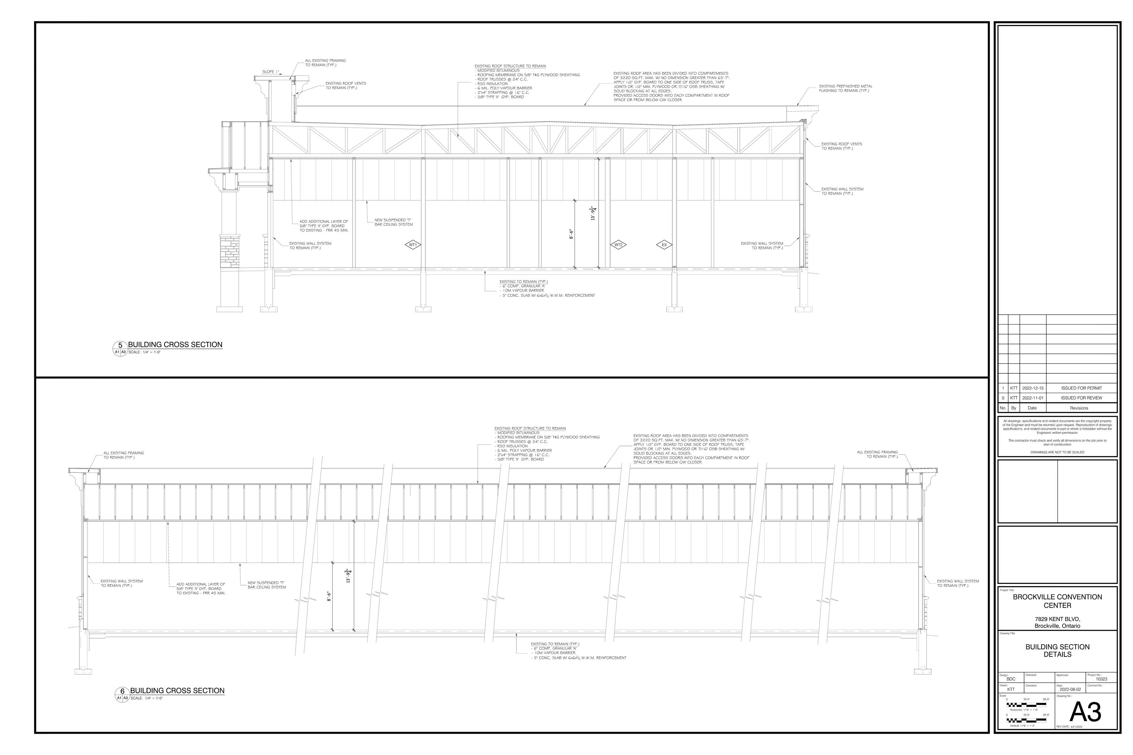
  • Addressed building envelope upgrades and integration of new mechanical/electrical services to meet residential standards.

  • Ensured the final design delivered functional, energy-efficient, and aesthetically cohesive living spaces suited to the surrounding neighborhood.

Planning & Code:

  • Navigated zoning by-law requirements for residential conversion and density compliance.

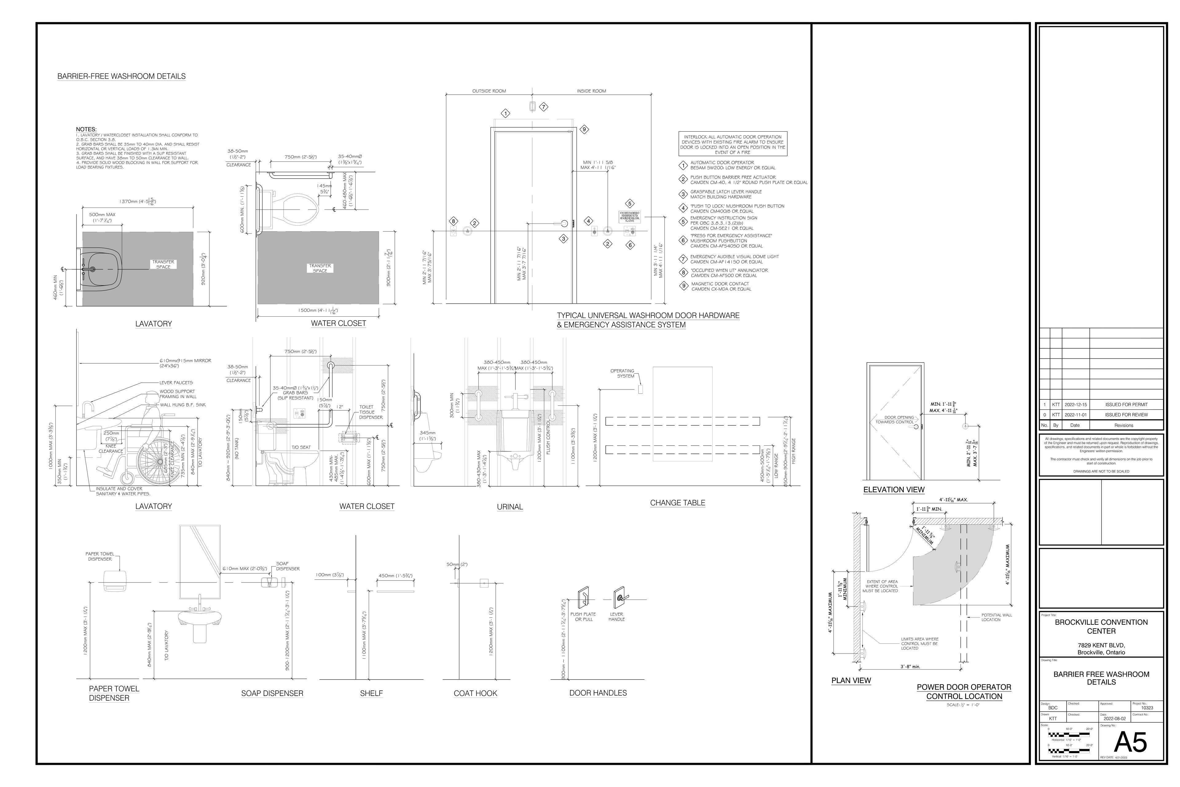
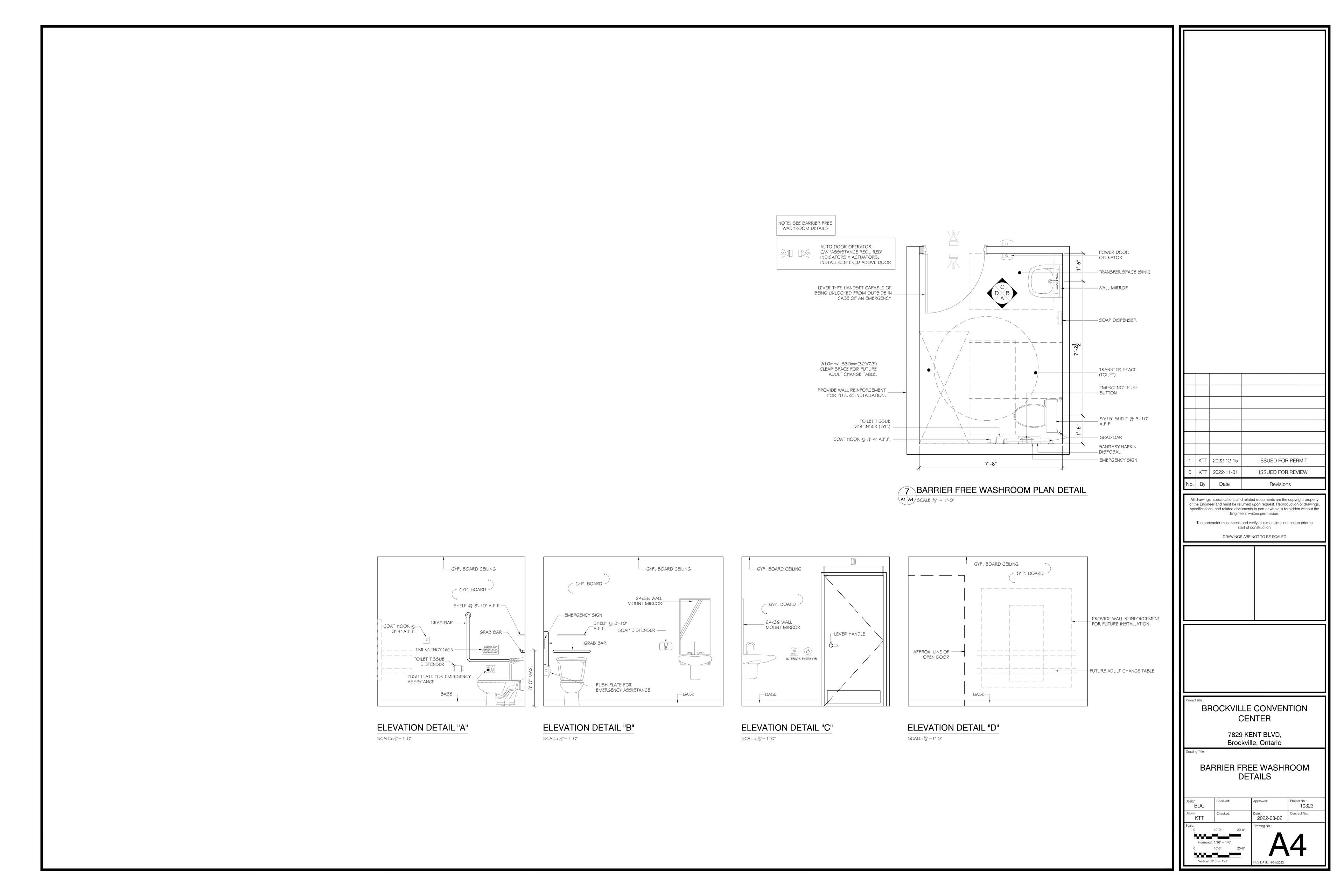
  • Reviewed OBC Part 9 provisions for small residential occupancy and barrier-free access upgrades.

  • Verified compliance with SB-12 energy efficiency requirements and fire safety separations for change of use.

Coordination:

  • Worked closely with structural and M/E engineers to evaluate load-bearing modifications, HVAC distribution, and electrical reconfiguration.

  • Coordinated with the contractor and building officials during permit and construction phases to ensure compliance and resolve on-site design clarifications.

Tools: Revit, AutoCAD, SketchUp, Twinmotion.

Outcome/Status: Completed (2024)

Related Drawings

Existing Floor Plan
Proposed Floor Plan

Permit Drawings

360o Virtual Panorama

Concept Renderings

Proposed Façade
Existing Façade

Ketan Tadha

Toronto, Ontario | (647) 608-7203 | tketan2496@gmail.com

© Ketan Tadha, 2025